B&C 二氧化氯傳感器(電極) SZ283 安裝使用說明書
目 錄一、 電極SZ283簡介 二、 每套傳感的標準組件 三、 標準組件外型和尺寸 四、 安裝
五、 YZ60-B 在線檢測儀表功能 六、 化學校正 七、 維護
意大利匹磁 二氧化氯傳感器SZ283電極
B&C匹磁SZ283 是一款先進的恒壓電極式二氧化氯傳感器, 具有靈敏度高、 信號響應迅速和使用維護簡單等諸多優點。 它搭配定制的 YZ60-X 系列在線儀表使用時, 能做到測量準確和性能穩定, 即使在城市自來水管網末端 CLO 2 濃度低于 0. 1ppm 的條件下也具有良好的表現。
與膜電極相比 SZ283 優勢明顯, 它通過兩個裸露在水中的鉑金環感應信號, 無須加注電解液或更換膜片, 更不會出現水中雜物輕易堵塞膜片而無法測量的情況。
二、傳感器及配套組件
1、 SZ283 恒壓電極 一支
2、 YZ60-B 在線檢測儀表 一臺
3、 YZ61-B 恒流器 一個
4、 YZ62-B 支架底板 一個
5、 YZ63-B 溫度傳感器(PT100) 一支
6、 附件: 進出水軟管各一米、 配套螺栓、 說明書等
注: 出廠時已將恒流器和底板固定在一起
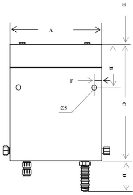
三、標準組件外型和尺寸
1、SZ283 恒壓電極 長度 110mm 直徑 12mm 線纜 3m
SZ283 恒壓電極(圖1) |
YZ63-B 溫度傳感器(圖2) |

YZ60-B在線測控儀實物正、側、底面(圖3)
YZ60-B 面板 長: 115mm YZ60-B 面板寬: 111cm YZ60-B 高: 95cm
柜裝開孔尺寸 長: 111mm 寬: 107cm
4、 YZ61-B 單孔座恒流器
![]() 圖 4(YZ61-B 恒流器尺寸和實物) 尺寸(單位: mm)
|
![]() |
5、YZ62-B 支架底板

意大利匹磁 二氧化氯傳感器SZ283電極
四、安裝
圖 6(安裝完好的一套傳感器)

1.1、 在方便取水的地方找一處合適的墻面, 安裝好固定支架底板的螺栓;
1.2、 將出廠時固定好的恒流器和底板安裝到墻上;
1.3、 水樣水管安裝
本說明書稱被測水為源水, 源水經管道流入恒流器, 恒流器中的水稱為取樣水。 源水與取樣水之間的管道一般有兩種安裝方法: 一種為“循環管道法”, 一種為“直通管道法”, 如圖 7、 圖 8 所示。
![]() 圖7 直通管道法 |
![]() 圖8 循環管道法 |
直通管道法取樣水處 CLO 2 含量不一定和源水中 CLO2含量相同, 因為恒流器中通過的水流很小, 管道較粗較長時源水到取樣水之間很可能有較長的延遲時間; 循環管道法則避免了管道中的水只能從小流量的恒流器中通過, 取樣水能夠在較短的時間反應出源水中的 clo 2 的含量, 只是在三通后端需安裝一個調節開關以保持恒流器水流的最小壓力。
按如圖 8或圖 7 所示方法安裝水樣水管, 排水管必須垂直向下, 無背壓排放 。 進水要求:壓力 0.2~1Pa, 流速 10~30 升/小時, 進水溫度 0~50℃。注意: 安裝好管道后用軟管將進水口轉接頭和恒流器連接起來前, 先放流一段時間, 這樣可以將管道中的雜物排出, 以免堵塞恒流器。 如果水樣中有較大的顆粒(100u 以上), 務必在水樣進水管上加裝有效的過濾器。
1.4、 安裝溫度傳感器 PT100
YZ63-B 是特殊定制的溫度探頭, 剛好可以和橫流器入水口上方 8mm 的鏍孔對應。將其放入后擰緊, 這樣 PT100 的低部正好可以感應被測水溫。
1.5、 SZ283 恒壓電極安裝
傳感器必須在恒流器連續有水的情況下才可以將插入恒流器孔座中, 并保證 SZ283一直浸沒在水樣中。 如果恒流器長時間失水, 必須將其取出, 用自帶的膠護套套好, 膠護套中如果沒有保護液則應裝入蒸餾水。 正因如此, 安裝完畢后膠護套及其中的液體不能輕易扔掉。
微微地調節恒流器 YZ61-B 的恒流開關, 直到恒流器頂部水槽稍有水益處, 而恒流器排水管無明顯積水為宜。
小心用手指甲輕推 SZ283 的膠套(注意不要用手擰, 以免損壞 SZ283), 直到膠套安全脫出, 保存好膠套及其中的液體。 將 SZ283 插入恒流器孔座中(小心: 不要碰壞傳感器頂端的玻璃頭)。
膠套液體帶有輕微的腐蝕性, 如果皮膚上沾上液體, 只需用水沖洗干凈即可。
1.6、 安裝在線儀表 YZ60-B
YZ60-B 可以通過導軌固定到墻上, 還可以安裝在柜體面板上, 但無論如何安裝, 它與恒流器之間的距離都不能超過 3 米, 因為 SZ283 和 YZ63-B 上都只有 3 米長的電纜, 如果需要更遠的距離必須選配專用的延長線以免信號衰減過多。 離恒流器盡可能運的地方安裝好導軌或柜體, 然后打開儀表后蓋, 通過防水接線頭將電源、 溫度和 CLO2 信號線引入儀表內, 按接線圖完成電氣連接, 蓋上后蓋再固定到導軌或柜體面板上。 這樣機械安裝過程就算結束了。
意大利匹磁 二氧化氯傳感器SZ283電極
2、 電氣連接
2.1、 電源和電流負載連接
YZ60-B 型檢測儀采用直流供電, 供電電壓范圍為 18V-36V, 4-20mA 輸出電流直接取于供電電源, 所以建議電源和輸出電流采用一根兩芯屏蔽電纜, 其中一芯用于電流輸出,
一芯用于電源正極, 屏蔽接地線, 如圖 9 所示。

圖9 電源電流輸出連接
1 TP+ PT100 紅色線
2 TP- PT100 蘭色線
3 TP- PT100 屏蔽線
4 R SZ283 屏蔽線
5 IN SZ283 黑色線
6 EL SZ283 白色線
意大利匹磁 二氧化氯傳感器SZ283電極
五、 YZ60-B 在線檢測儀功能
YZ60-B 型 CLO 2 在線檢測儀的最主要功能是檢測顯示取樣水中 CLO 2 的含量并輸出與之對應的電流。 在線檢測儀采用 ABS 塑料和鋁型材組成的密封外殼, 具備防水、 防潮、防腐和散熱的功能。 內部電路設有多重隔離以確保產品具有優良質量、 高可靠性, 有復位、過載保護及接線錯誤保護功能。 該儀表帶有 Eprom 停電記錄功能, 確保儀表參數掉電后不丟失。 為該產品專門設計的軟件功能強大、 性能優越、 操作簡單。 背亮式 LCD 顯示、
中英文雙語菜單和處理軟件的提示使整個參數設置過程簡單明了, 即使是未受過專門訓練的操作人員也能進行操作。
主要技術參數:
①供電電源: 直流電壓范圍為 18V~36V, 最高隔離電壓 1000 伏, 具備瞬態浪涌電流抑制保護能力和極限反轉保護;
②功耗: 電流小于 120mA, 自身功率消耗小于 3W;
③量程: 0~2 /20ppm 可選;
④輸出電流: 4~20 mA, 非線性失真<0.1FS, 額定輸出電流溫漂≤50ppm/℃, 額定輸出過流限制保護 25 mA±10%, 兩線端口具備瞬態浪涌電流抑制保護能力, 額定負載 250 歐;
⑤電極恒電壓值: -200mV;
⑥軟件濾波時間: 60s;
⑦溫度補償: 2% /℃。
按鍵: 檢測儀設置了五個按鍵MENU、INC 、DEC 、EXIT 、ENT , 這五個按鍵在不同的設置頁面中起不同的作用, 具體請見參數設置篇。
| 按鍵 | 符號 | 功能 |
| MENU | 菜單 | 進入參數設置頁 |
| INC | 下移/加一 | 修改數據時作為 + 鍵 菜單中作為條目下移鍵 |
| DEC | 上移/減一 | 修改數據時作為 - 鍵 菜單中作為條目上移鍵 |
| EXIT | 返回/退出 | 修改數據時退出不保存 菜單中返回到上級頁面 |
| ENT | 確認 | 確認保存數據 確認選擇條目保存 |
⑤ 恢復參數⑥ 溫度補償⑦ 零點校正⑧ 實數校正
意大利匹磁 二氧化氯傳感器SZ283電極
1液晶顯示頁面:

頁面中間的大數字顯示當前測量值; 測量物質為 CLO 2 ; PPm|02 的意義是量程為 02,單位 PPm; 10.8 ℃ |Y 則指水溫為 10.8℃且參與了測量校正; 右下角的小數字 5.73mA 表示在量程為 0~2ppm 的情況下檢測儀輸出的電流。
顯示內容與設置的參數有關。 如測量物質有 CLO 2 / CL 2 / O 3 、 量程 02/20 PPm 可選、溫度不參與控制會顯示 10.8 ℃ |N、 溫度探頭損壞或接線錯誤則顯示 No or Err 等等.
2、 中英文選擇菜單

3、 主菜單:此頁提供了用戶可能用到的所有參數。

4、 電流測試頁

進入該頁面后檢測儀暫屏蔽根據實際測量而計算出的電流, 轉而輸出顯示電流即4mA。
5、 電流調整頁

儀表輸出電流因溫度變化會產生一定的漂移(≤50ppm/℃) , 本設置頁提供了 手動補償電流漂移的方法, 補償范圍±1. 00 mA。
6、 量程選擇頁

檢測儀提供了 2 或 20 ppm 兩擋量程。
7、 測量對象頁

SZ283 能夠測量的物質包括 CLO2、 CL2 和 O3, 本項默認設置為 CLO2。
8、 恢復出廠參數頁面

當用戶錯誤地設置了 參數或設置參數后沒有達到預期的效果便可進入本頁面修復參數。 選擇 YES 并確認, 用戶之前設置的參數將被出廠參數代替。
9、 溫度補償頁

水溫對 SZ283 信號感應有較大影響, 一般情況下 20℃為溫度補償平衡值。 當水溫>20℃時儀表顯示值大于實際值, 同樣當水溫<20℃時儀表顯示值小于實際值。 正常測量情況下應有溫度補償, 除非溫度傳感器損壞, 溫度補償系數 2% /℃。
10、零點校正頁

儀表將當前測量值作為基點保存, 實際測量時減去該基點, 即零點校正。
11、 實數校正頁
前測量值和校正值被儀表記錄, 實際測量時作為比列關系參與運算即斜率校正。
12、 參數保存提示頁
參數設置:大多數儀表有許多繁雜的參數需要設置, 使得不熟悉的用戶無從下手, 不能很好地使用儀表, 而 YZ60-B 在線檢測儀則一切從用戶的角度出發, 固化了絕大多數的參數, 只留下幾個必要的參數供用戶設置或選擇。
意大利匹磁 二氧化氯傳感器SZ283電極
1、 進入設置菜單
在正常測試頁面下持續按住鍵 MENU4 秒鐘, 檢測儀將切換到語言選擇頁面,閃爍的上三角光標指示選擇語言為中文,ENT鍵按下后就能進入主菜單。INC\EDC兩鍵可以將光標移到需要的條目, 然后按下ENT便能進入具體參數的設置, 如果參數設置結束或想退出設置請鍵入,EXIT返回上級菜單。
2、電流測試、 電流調整、 量程選擇、 測量對象、 恢復參數菜單
以上幾個參數設置方法基本相同, 這里只簡要介紹。 測試輸出電流的目的是為了查看儀表 YZ60-B 的輸出信號是否正確無誤地連接到負載上, 在電流測試頁中通過INC或EDC鍵改變輸出電流的大小, 同時查看負載上是否有相應的信號變化就能判斷; 在電流調整、 量程選擇、 測量對象、 恢復參數頁面中也是用加減改變具體數字或選擇對象, 然后確認, 此時彈出參數保存提示頁面顯示更改已被儀表接受。
3、 溫度補償設置

4、 溫度補償界面中可以設置水溫是否參與測量值補償, “自動溫度補償” 后面選擇Yes 則水溫參與測量值計算, 同時還可以進一步設置溫補范圍, “自動溫度補償” 后面選擇 No 儀表不考慮水溫條件。
恒流器中通入蒸餾水或無氯地下水, 在測量顯示頁面中待顯示數據穩定 5-10 分鐘后再進入零點校正頁面, 按下ENT鍵, 存儲當前零點數據。
與零點校正一樣, 校正前恒流器中應通入 CLO 2 含量固定的水溶液(例 1.2PPm), 在測量顯示頁面中待顯示數據穩定 5-10 分鐘, 如果顯示值(例 1.008PPm)與 CLO 2 實際含量(例
1.200PPm)差別較大則再進入實數校正頁面校正參數, 按下圖所示改變參數 (按住 INC 或DEC 鍵不放參數會連續跳變), 確認即可保存設置。 注意修改溫度補償條件后應再次進行實數校正。
注意: 斜率校正的正確方法 —— 先設置好溫度補償條件, 然后通入無氯水流, 待實測值穩定幾分鐘后切換到零點校正頁保存參數, 然后退回到正常測量狀態, 看是否顯示零或接近為零, 否則重新進行零點校正。 之后, 再通入實測水流, 待測量數據穩定幾分鐘后, 再切換到實數校正頁設置保存參數。 測量值計算公式如下

意大利匹磁 二氧化氯傳感器SZ283電極
六、 化學校正
零點校正: 當系統初次使用時, 為了補償電極間的潛電流, 零點校正顯得非常必要。
將傳感器放入恒流器中, 用蒸餾水作水樣, 將水流調到一定的流量, 讓讀數穩定 10-20 分鐘(如果不是充分蒸餾的水, 水中可能殘余有氧化物)。 零點校正只有當電零位受到影響
才有必要, 如將通電的傳感器暴露在空氣中。
斜率校正: 在斜率校正之前, 應保證合適水流量, 正確的零點電流及讀數顯示穩定。
從恒流器出水口取水樣, 進行化學分析, 檢測 CLO 2 的濃度(建議用 DPD 法), 再根據分析值進行校正。 在校正前應用濾紙清潔鉑金環(見維護篇)。
七、 維護
監控儀: 高質量的器件和多重信號隔離措施保證了監控儀具有極高的可靠性, 但是還是應定期進行日常維護, 以確保監控儀殼體上沒有水粒、 沒有被腐蝕、 電纜接觸良好。
傳感器: 傳感器鉑金環表面清潔情況對系統的正常測量至關重要, 應定期對傳感器仔細檢查, 如果有污物或顯示值與化學分析偏離較大(如 0.05mg/l 以上), 則必須對鉑金環進行清潔校正。
建議清潔的方法如下:
1. 在斷電的情況下從恒流器中取出傳感器
2. 將鉑金浸在 5%HCL 溶液中 30 秒, 也可用柔軟的棉紙小心輕擦鉑金環
3. 用去離子水或自來水沖洗干凈
4. 將傳感器重新裝進恒流器中, 重新運行傳感器
恒流器: 對恒流器的維護主要是檢查內部各通孔是否有污物堵塞, 以保證水流無阻通過;定期清除恒流器前過濾器中的雜物, 確保通過恒流器水流的壓力。

全國服務熱線





